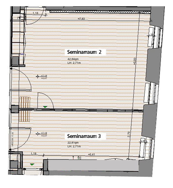
Seminarraum 2 + 3

Die Seminarräume 2 und 3 können durch Entfernen einer mobilen Wand gemeinsam genutzt werden. Die Grundfläche beträgt dann 64 m² für bis zu 50 Personen.

Grundriss Seminarraum 2 + 3
Grundriss Seminarraum 2 + 3
Übersicht Seminarraum 2 + 3
Übersicht Seminarraum 2 + 3

Ansprechpartner

Nicole Langer
T0211-90 10 292
F0211-90 10 256
E-Mail